产品名称:
冲压件No. 640162
热销
False
品牌:
型号:
累计评价:
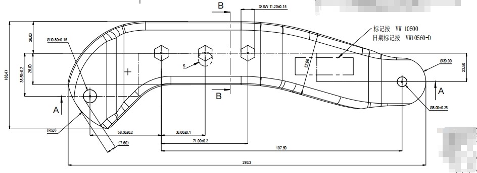
零件名称基本工艺材料报价数量货运日期冲压150件2024/6/17零件描述材质:DIN EN 10149-2 S460MC DIN EN 10051-3.0要求:1.表面光洁度:按VW 13750 OF1-R642,WW X631;2.工件边缘按VW 01088,所有边缘无毛刺; 3.允许的切割公差为±0.5。外形尺寸毫米材料提供方供应商货运安排批次交货日期报价数量1/12024/6/17150件总计150件
天猫积分:
颜色分类:
公司介绍
产品介绍
详细参数





| 零件名称 | 基本工艺 | 材料 | 报价数量 | 货运日期 |
| 冲压 |
| 150件 | 2024/6/17 |
| 零件描述 | 材质: DIN EN 10149-2 S460MC DIN EN 10051-3.0 要求: 1.表面光洁度:按VW 13750 OF1-R642,WW X631; 2.工件边缘按VW 01088,所有边缘无毛刺; 3.允许的切割公差为±0.5。 |
| 外形尺寸 | 毫米 |
| 材料提供方 | 供应商 |
| 货运安排 | 批次 | 交货日期 | 报价数量 |
|
| 1/1 | 2024/6/17 | 150件 |
| 总计 |
| 150件 |